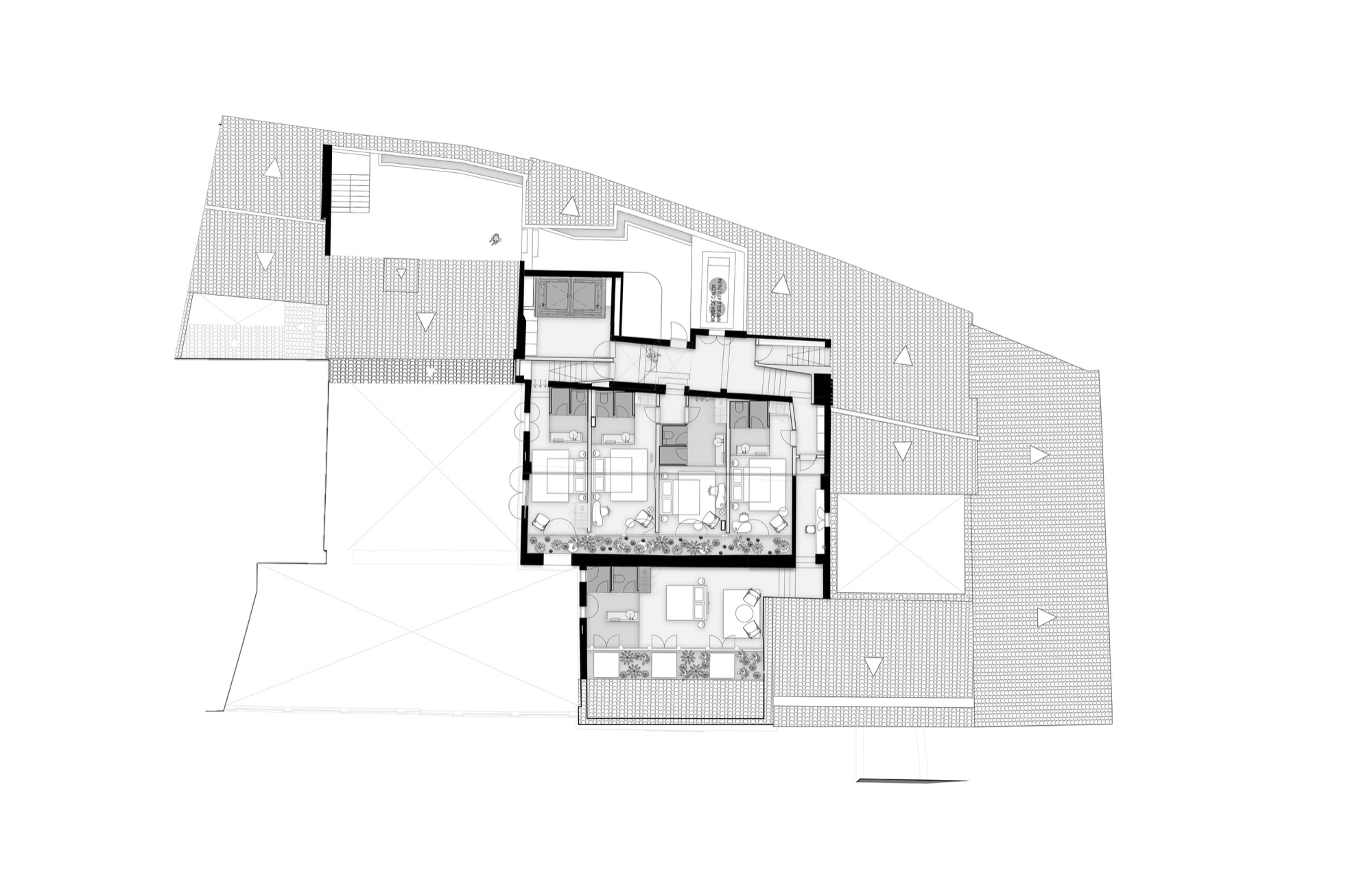
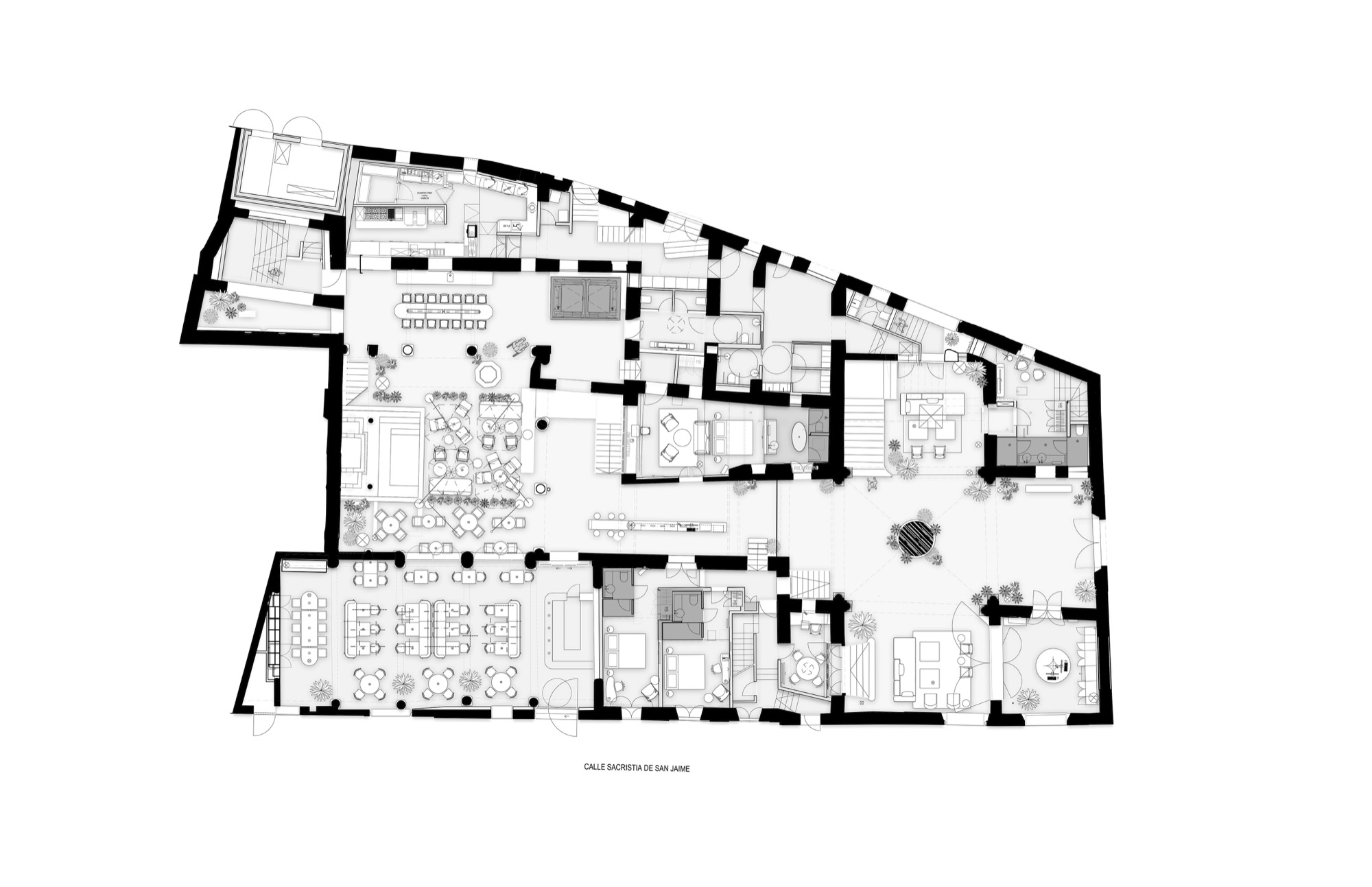
Tòa nhà Can Oliver, tọa lạc tại phố Caputxines 9, trung tâm lịch sử Palma de Mallorca, là một công trình lịch sử với diện tích 2.253 m², bao gồm 3 tầng và tầng hầm. Công trình nổi bật với 3 sân trong, cầu thang lớn kiểu Majorcan, trần gỗ Ả Rập từ thế kỷ 12, tranh trang trí Gothic và sảnh chính cao 9m, mang giá trị kiến trúc và lịch sử độc đáo. Dự án tái thiết kế tập trung bảo tồn những yếu tố này, đồng thời chuyển đổi tòa nhà thành khách sạn boutique 5 sao Hotel Nobis.
Dự án gặp nhiều khó khăn từ Hội đồng Thành phố Palma, vốn đã từ chối cấp phép cho nhiều dự án trước đó do làm biến dạng công trình gốc. Thay vì áp đặt mô hình khách sạn lên Can Oliver, đơn vị thiết kế chọn cách đưa tinh thần Nobis hòa nhập vào bản sắc kiến trúc của Can Oliver. Mục tiêu là tạo ra một không gian tôn vinh giá trị lịch sử, đồng thời đáp ứng nhu cầu của một khách sạn hiện đại, sang trọng.

Quá trình thiết kế bắt đầu bằng khảo sát chi tiết để xác định và phục hồi các yếu tố được bảo vệ, như trần gỗ Ả Rập và tranh Gothic, cùng các không gian và kết cấu giá trị. Tòa nhà được cập nhật về cấu trúc, an toàn, khả năng tiếp cận và cách nhiệt, sử dụng các hệ thống xây dựng khô, có thể đảo ngược, để phân biệt rõ với kiến trúc gốc và đảm bảo linh hoạt cho các thay đổi công năng trong tương lai. Cách tiếp cận này bảo tồn tính nguyên bản của Can Oliver mà vẫn đáp ứng yêu cầu hiện đại.



Đơn vị thiết kế tận dụng các cơ hội từ công trình sẵn có thay vì áp đặt giải pháp mới. Mặt tiền và sân trong giữ nguyên kết cấu và dấu vết lịch sử, như các vòm và cửa sổ cũ được phát hiện khi bóc lớp trát, với quyết định phục hồi cả lớp mặt tiền gốc và lớp từ những năm 1950 tại khu vực nhà hàng. Các phòng được bố trí để bảo toàn không gian gốc, sử dụng hộp thép và kính tối giản cho nhà vệ sinh và vòi sen, tích hợp điều hòa, trong khi bồn rửa được thiết kế như món đồ độc lập. Một hành lang cắt ngang phòng gốc được giải quyết bằng cấu trúc dạng đường hầm, đảm bảo cảm nhận không gian liền mạch.



Tầng áp mái được chiếu sáng qua các dải mái mở tạo sân trong nhỏ với vườn cây, thay vì cửa sổ trời gây nóng và ánh sáng gắt. Lớp trát giả đá khối được gỡ bỏ để phô bày vật liệu gốc, kết hợp với thép đen cho các yếu tố mới, tạo sự tương phản rõ ràng giữa cũ và mới, mang đến một kiến trúc mạnh mẽ nhưng chân thực.




Nội thất, do studio Wingårdhs (Thụy Điển) thiết kế, sử dụng rèm lớn, đồ gỗ riêng biệt và nội thất nhẹ nhàng để cân bằng vẻ thô ráp của kiến trúc, bổ sung cây xanh và ánh sáng tinh tế để làm nổi bật kết cấu tòa nhà.




Dự án Can Oliver là một sự cân bằng giữa các cực đối lập: cổ xưa và hiện đại, truyền thống và tiên phong, khắc nghiệt và dịu dàng. Kết quả là một không gian vượt thời gian, vừa giữ gìn dấu ấn lịch sử vừa linh hoạt với sự thay đổi, phản ánh qua các kết cấu tiến hóa theo ánh sáng và thời gian. Thiết kế không chỉ đáp ứng chức năng của một khách sạn boutique mà còn kể một câu chuyện về sự giao thoa giữa quá khứ và tương lai.




Hai đơn vị kiến trúc Jordi Herrero Arquitectos và Eduardo Garcia Acuña Arquitecto từng cộng tác với Wingårdhs trong nhiều dự án như Concepció by Nobis – một khách sạn trong nhà máy xà phòng thế kỷ XVI tại Palma. Vai trò của họ thường là kiến trúc sư kết hợp, có nhiệm vụ phân tích cấu trúc hiện trạng, bảo tồn các yếu tố lịch sử, lựa chọn giải pháp xây dựng khô, có thể đảo ngược và kết hợp với các cấu trúc mới bằng thép và kính. Cách tiếp cận của họ với Nobis Hotel thể hiện sự tôn trọng cực cao đối với cấu trúc lịch sử, trong khi vẫn đủ linh hoạt để đan kết tiện nghi mới, đảm bảo công năng hiện đại mà không lấn át giá trị nguyên gốc.




Xem thêm ảnh công trình này
Năm hoàn thành
2023
Ảnh
José Hevia
Biên tập
Anh Nguyên


























