Trong các kiến trúc tôn giáo ở Việt Nam, nơi thờ Phật được gọi là chùa, phân biệt với đền, miếu hay nhà thờ, vốn chỉ nơi thờ các vị thần trong các tín ngưỡng và tôn giáo khác. Chùa là một từ Việt Nam có nguồn gốc chưa rõ ràng. Từ chùa ít có khả năng liên hệ với từ tự (sì) của Trung Quốc. Có người cho rằng từ chùa bắt nguồn từ từ thupa (tiếng Pali) hoặc stupa (tiếng Sanskrit) của Ấn Độ, bởi vì chùa Việt Nam ban đầu có dạng tháp. Thupa hay stupa bị người Việt Nam rút ngắn, như theo thói quen của họ khi nhập các từ từ nước ngoài đa âm tiết, còn lại thu hay stu, rồi thành từ “chùa”. Tuy nhiên, đó chỉ là một giả thuyết.
Để chỉ chùa thờ Phật, trong tiếng Việt cổ còn có từ chiền. Ngày nay, từ này chỉ còn trong cụm từ “chùa chiền”, dùng để chỉ chung các kiến trúc Phật giáo. Nhưng xưa kia, “chiền” có thể dùng độc lập, như “chiền vắng am thanh” trong bài phú Cư trần lạc đạo của Trần Nhân Tông (1258–1308) hoặc “Cành ở tự chiền” trong Quốc âm thi tập của Nguyễn Trãi (1380–1442). Một số người cho rằng từ “chiền” có thể bắt nguồn từ từ cetiya, cetiyan (tiếng Pali) hoặc caitya (tiếng Sanskrit), chỉ điện thờ Phật.

KIẾN TRÚC CHÙA VIỆT
Phật giáo du nhập vào Việt Nam khoảng đầu Công nguyên, và từ đó, các ngôi chùa dần dần xuất hiện, đến mức gần như mỗi làng đều có một ngôi chùa. Qua gần 2000 năm lịch sử Phật giáo Việt Nam, kiểu kiến trúc các chùa cũng như các Phật điện bên trong đã biến đổi cùng với thời gian và không gian. Tuy nhiên, dù có biến đổi thế nào, chúng ta vẫn nhận ra một số đặc điểm chung của chùa Việt Nam.
Việt Nam có câu tục ngữ “Đất vua, chùa làng”. Điều này thể hiện rằng, ở Việt Nam, cũng như nhiều nước phương Đông khác, trong thời trung đại, toàn bộ đất đai trong cả nước thuộc quyền sở hữu của nhà vua, còn các ngôi chùa thuộc về cộng đồng làng xã. Ngoài đền, đình thờ thần, chùa còn vừa là nơi thờ Phật, vừa là nơi thờ cả thần trong một số trường hợp. Có nhiều ngôi chùa lớn do nhà nước xây dựng, nhưng phần lớn vẫn là các ngôi chùa làng.
Xây chùa luôn luôn là công việc trọng đại của dân làng Việt Nam. Trước tiên, phải chọn đất xây chùa, và việc chọn đất này thường bị chi phối bởi quan niệm phong thủy (geomancy), cho rằng vị trí đất, thế đất có ảnh hưởng lớn đến cuộc sống của con người. Quan niệm này đã thể hiện rõ qua một câu thơ của Không Lộ (?-1119), nhà sư thời Lý: “Tuyển đắc long xà địa khả cư”, nghĩa là “Chọn được thế đất rồng rắn, có thể yên ổn”. Chúng ta có thể thấy rõ cách chọn đất qua một đoạn trong sách Chùa theo quan niệm phong thủy An tượng tam muội tập, theo bản in thời Nguyễn và còn lưu giữ tại chùa Xiển Pháp, thôn An Trạch, bên phải Văn Miếu, Hà Nội.
Xây dựng chùa, phải chọn đất tốt, ngày tốt, giờ tốt. Đất tốt là nơi bên trái trống không, hoặc có sông, hồ ao ôm bọc. Núi hổ (hay tay hổ) ở bên phải phải cao dày, lớp lớp quay đầu lại, hoặc có hình hoa sen, tràng phướn, lọng bầu, hoặc có hình rồng, phượng, quy, xà chầu bái. Đó là đất dương cơ ái hổ (nền dương có tay hổ) vậy. Cũng lại nên cưỡi đảo lại (đảo kỵ), như là người cưỡi ngựa thì đầu ở phía trước. Nước thì nên chảy quanh về phía trái. Nếu đảo kỵ, thì mạch nước lại vào ở phía trước.
Trước mặt có minh đường hay không có minh đường đều được cả. Phía sau không nên có núi áp kề, thế là đất tốt. Còn để chọn ngày tốt, giờ tốt, thì nên dùng các sách Ngọc Hạp, Tử Cát xem cho kỹ lưỡng. Nếu được như thế, mới có thể hưng hiển đạo pháp, người trụ trì nảy sinh trí tuệ, người thí chủ có công đức lớn, phúc ấm đến con cháu. Nếu không làm như vậy, thì về sau dễ đổ nát, không có công đức gì. Cho nên hãy cẩn thận!
Nhìn chung, chùa Việt Nam thường được dựng ở những nơi có cảnh trí thiên nhiên đẹp. Tuy nhiên, vì thuộc về cộng đồng, nên cần có những mối liên hệ cộng đồng. Những mối liên hệ này cũng góp phần quy định nơi dựng chùa. Thiền đạo yếu học, được coi là tác phẩm của nhà sư Pháp Loa (1284–1330), chép trong sách Tam tổ thực lục, có đoạn: “Khi đã liễu ngộ chính tông rồi thì chọn cảnh chùa mà trụ trì, tránh những nơi nước độc non thiêng. Cảnh có bốn điều: một là nước, hai là lửa, ba là lương thực, bốn là rau. Đây là bốn điều cần. Lại cũng nên biết cảnh không gần nhân gian mà cũng không xa nhân gian, vì gần thì ồn ào, mà xa thì không ai giúp đỡ. Cảnh có thể trú là chỗ yên nghiệp, dễ dưỡng thần, nuôi tính, tâm linh sáng suốt, trường dưỡng thánh thai, để được chứng đạo, ấy là cứu cánh.”
Như vậy, từ lâu đời, người Việt Nam đã có ý thức rõ ràng về môi trường tự nhiên và xã hội của ngôi chùa.

Chùa Việt Nam, trong các làng quê, được xây dựng bằng các thứ vật liệu quen thuộc của xứ sở nhiệt đới này, từ tre, tranh, gỗ, gạch, ngói… Nhưng thường người ta dành cho chùa những vật liệu tốt nhất có thể có được. Vật liệu cũng như tiền bạc dùng cho việc xây dựng chùa thường được quyên góp trong mọi tầng lớp cư dân, gọi là của “công đức”. Người ta tin rằng sẽ được hưởng phúc khi đem cúng vật liệu hoặc tiền bạc cho việc xây dựng chùa. Trên các cột gỗ lim – loại gỗ tốt ở Việt Nam, không bị mối mọt – ở một số chùa còn khắc rõ tên người đóng góp. Tên những người đóng góp còn gặp trên các bàn thờ bằng đá hoặc trên các đồ sành sứ như bát hương, bình hoa, chân đèn… và thường được ghi trong một danh sách dài trên các tấm bia chùa.
Ngày bắt đầu xây dựng chùa cũng như ngày khánh thành đều là những thời điểm có ý nghĩa quan trọng trong đời sống nhân dân làng quê Việt Nam. Thường có những nghi lễ đặc biệt diễn ra trong những ngày này.

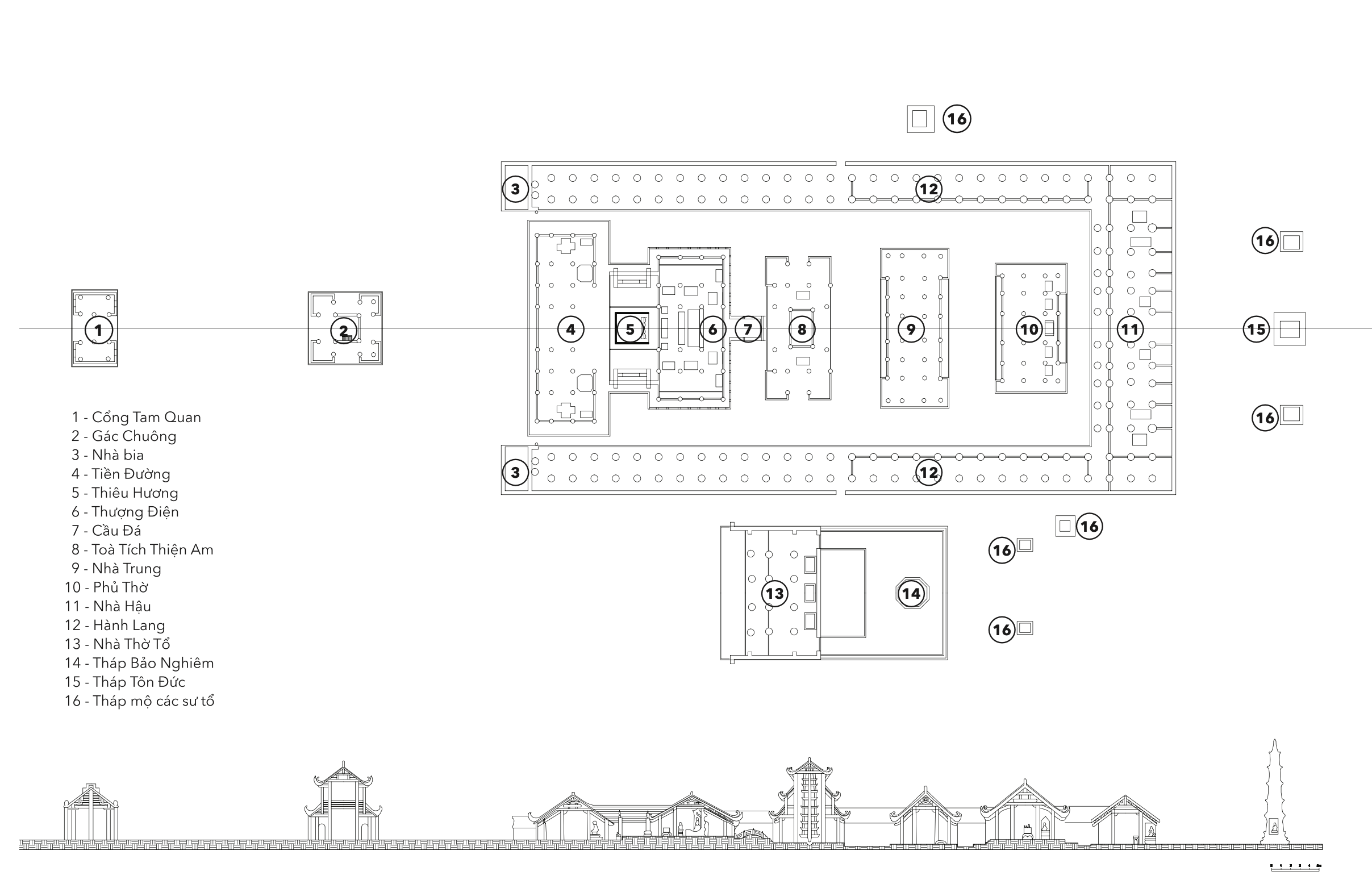
Chùa không phải chỉ là một ngôi nhà mà bao giờ cũng là một quần thể kiến trúc, gồm các ngôi nhà sắp xếp cạnh nhau hoặc nối vào nhau. Tùy theo cách bố trí các công trình này mà người ta chia thành các kiểu chùa khác nhau. Tên các kiểu chùa truyền thống thường dựa theo các chữ Trung Quốc, có dạng gần với bình diện kiến trúc của chùa.
Kiểu chùa đơn giản nhất là kiểu chữ Đinh, có nhà chính điện hay nhà thượng điện – nơi đặt các bàn thờ Phật – nối thẳng góc với nhà bái đường hoặc nhà tiền đường phía trước. Nhà bái đường đôi khi còn gọi là chùa hộ, có thể vì ở đây thường có các tượng Hộ Pháp.
Phổ biến hơn cả là kiến trúc có nhà chính điện và nhà bái đường song song với nhau, được nối với nhau bằng một ngôi nhà gọi là nhà thiêu hương, nơi nhà sư làm lễ. Có nơi gọi gian nhà nối nhà bái đường với Phật điện là ống muống. Trong trường hợp này, kiểu chùa gọi là kiểu chữ Công.

Kiểu chùa chữ Tam là loại chùa có ba nếp nhà song song, thường được gọi là chùa hạ, chùa trung và chùa thượng, như kiểu chùa Kim Liên, chùa Tây Phương ở Hà Nội… Tuy nhiên, tên gọi các kiểu chùa này chỉ dựa trên cụm kiến trúc chính. Ngoài ra, trong chùa còn có các công trình khác như nhà tổ – thờ các vị sư từng trụ trì hoặc đã tịch, nhà tăng – nơi ở của các nhà sư, cùng những kiến trúc khác như gác chuông, tháp, tam quan. Tam quan là cổng vào chùa, thường là một ngôi nhà có ba cửa vào. Có những chùa có đến hai tam quan, một tam quan ngoại và một tam quan nội.
Một kiểu chùa khá phổ biến ở miền Bắc Việt Nam là kiến trúc có hai hành lang dài nối liền nhà tiền đường (hay nhà bái đường) ở phía trước với nhà hậu đường (có thể là nhà tổ hoặc nhà tăng) ở phía sau, tạo thành một khung chữ nhật bao quanh lấy nhà thiêu hương, nhà thượng điện hoặc các kiến trúc khác ở giữa. Kiểu chùa này được gọi là nội Công ngoại Quốc, nghĩa là phía trong có hình chữ Công, còn phía ngoài có khung bao quanh như hình chữ Quốc.

Tháp chùa Phổ Minh (Nam Định). Ảnh: Triệu Chiến.
Trong thực tế, các kiểu chùa trên có nhiều biến thể khác nhau (xin xem hình dạng bình diện của một số chùa trong sách này). Trong một số chùa, phía sau điện thờ Phật còn có điện thờ Thần, đó là loại chùa tiền Phật hậu Thần phổ biến ở Bắc Bộ. Ngoài ra, còn có chùa gác chuông ở phía trước, phía sau, hoặc ngay trên tam quan, hoặc trên nhà tổ. Ở một số chùa, có các ngôi tháp lớn đặt trước mặt, như chùa Dâu ở Bắc Ninh, chùa Phổ Minh ở Nam Định; còn ở nơi khác, các tháp lại ở hai bên chùa hoặc có vườn tháp riêng.
Để tạo ra một thế giới gần thiên nhiên, tĩnh lặng mà vẫn tươi đẹp, chùa Việt Nam thường có vườn cây, vườn hoa được chăm sóc cẩn thận. Nhiều chùa còn có ao, hồ sen, giếng chùa trong mát và thường có thành giếng xây đẹp.
Kiến trúc chùa truyền thống Việt Nam khá đa dạng. Các kiểu chùa như hiện nay đã xuất hiện qua nhiều thời kỳ lịch sử khác nhau. Tính đa dạng còn thể hiện qua không gian và các phong cách kiến trúc địa phương.
Chẳng hạn, chùa kiểu chữ Tam phổ biến ở miền Nam hơn miền Bắc. Cách xây dựng ngôi chùa theo kiểu chữ Tam ở miền Nam cũng khác so với các chùa cùng kiểu ở miền Bắc. Các chùa cổ như Giác Lâm, Giác Viên (TP Hồ Chí Minh) có đường nóc ngắn, với bốn mái rộng, mà dân địa phương quen gọi là nhà kiểu bánh ít (một loại bánh làm bằng bột gạo miền Nam).
Ngoài người Kinh, một số dân tộc thiểu số khác ở Việt Nam cũng có chùa riêng. Chùa người Mường làm bằng tranh tre đơn giản. Chùa người Khơme có kiến trúc đẹp, với mái biểu hiện ảnh hưởng Campuchia và Thái Lan. Chùa người Hoa cũng có nét kiến trúc riêng biệt… Tính đa dạng của kiến trúc chùa Việt Nam càng tăng lên khi xuất hiện những ngôi chùa hiện đại được xây dựng gần đây. Nếu chùa đa dạng thì các Phật điện cũng không kém phần phong phú. Cách bài trí tượng thờ tại các Phật điện Việt Nam cũng đã biến đổi theo thời gian và không gian.
HỆ THỐNG TƯỢNG PHẬT
Do lịch sử truyền nhập Phật giáo, phần lớn chùa Việt Nam thuộc dòng Mahayana (Đại Thừa). Vì vậy, trong nhà chính điện cũng như các tòa nhà trong chùa, chúng ta thường thấy nhiều tượng Phật (Buddha), Bồ Tát (Bodhisattva) cùng tượng các thiên thần Phật giáo khác. Chưa kể còn có mặt các tượng thần của các tôn giáo khác và tín ngưỡng dân gian Việt Nam truyền thống. Hiểu rõ các tượng trong chùa giúp chúng ta nhận diện đặc điểm của Phật giáo Việt Nam.
Chính điện luôn luôn là nơi trung tâm của sự thờ cúng trong chùa. Ở đây có nhiều bàn thờ, trong đó bàn thờ chính, đặt ở giữa, thường được làm thành những bậc từ cao xuống thấp. Không có một công thức chung nào cho việc bài trí tượng ở các chùa Việt Nam. Vị trí của các tượng thay đổi một cách linh hoạt tùy theo từng ngôi chùa. Có nhiều lý do cho tính đa dạng này. Như sẽ thấy ở phần sau, các kiểu tượng Phật và Bồ Tát biến đổi qua các thời kỳ lịch sử. Thêm vào đó, mỗi lần trùng tu chùa, người ta thường tạo ra một loạt tượng mới, nhưng các tượng cũ, nếu chưa hư hỏng, cũng không bị bỏ đi. Ngoài ra, các tín đồ thường cúng vào chùa các pho tượng khác nhau. Do đó, người ta cố gắng xếp tất cả các tượng có được, dù là gây sự trùng lặp trên bàn thờ. Vì vậy, có những chùa sở hữu rất nhiều tượng, như chùa Mía (tức là Sùng Nghiêm tự, ở tỉnh Hà Nội), có tới 287 pho tượng; hoặc chùa Trăm Gian (tức Quảng Nghiêm tự, cũng ở Hà Nội), có 153 pho tượng… Cũng có khi người ta đem vào một ngôi chùa những pho tượng từ các chùa lân cận bị sụp đổ.
Tuy nhiên, cũng có một số nét chung thường thấy trong cách bài trí tượng trong các chùa Việt Nam, đặc biệt là các chùa ở Bắc Bộ và một phần Trung Bộ.

Ở tầng cao nhất của bàn thờ chính giữa trong chính điện, sát vách thường có ba pho tượng gọi là “tam thế”, tượng các vị Phật của ba thời gian: Quân khử, Hiện tại và Vị lai. Ba vị Phật này chỉ là biểu tượng cho vô số Phật trong mọi thời gian và không gian, theo quan niệm của Phật giáo Đại Thừa.
Tượng Phật Tổ Như Lai và tượng Quan Âm Nam Hải trong chùa Bối Khê (Thanh Oai, Hà Nôi).
Ảnh Triệu Chiến


Phía dưới ba pho tượng tam thế, thường xếp ba pho tượng gọi là “Di Đà tam tôn”: gồm tượng Phật A Di Đà (Amitabha) ở giữa, tượng Bồ Tát Quan Thế Âm (Avalokitesvara) ở bên trái và tượng Bồ Tát Đại Thế Chí (Mahasthamaprapta) ở bên phải. Tượng Phật A Di Đà thường có kích thước lớn hơn các tượng khác.
Sự có mặt ở vị trí đặc biệt của tượng Phật A Di Đà cùng với tượng các Bồ Tát Quan Thế Âm và Đại Thế Chí đã phản ánh ý nghĩa quan trọng của tín ngưỡng Tịnh Độ trong Phật giáo Việt Nam. Ở Việt Nam, không có một phái Tịnh Độ riêng biệt, nhưng tín ngưỡng Tịnh Độ rất phổ biến, trở thành một lớp bình dân trong Phật giáo. Theo tín ngưỡng này, người ta tin vào một cõi Tịnh Độ hay Tây Phương Cực Lạc, nơi có Phật A Di Đà ngự trị, và các Bồ Tát Quan Thế Âm, Đại Thế Chí sẽ tiếp dẫn linh hồn chúng sinh đến đó. Người ta niệm danh hiệu Phật A Di Đà nhiều lần để dễ dàng vãng sinh về cõi Tây Phương Cực Lạc. Tên A Di Đà Phật đã trở thành lời chào của tín đồ Phật giáo Việt Nam.

Cần nói thêm rằng, trong các chùa Việt Nam, tượng Đại Thế Chí chỉ thường được thờ bên cạnh tượng A Di Đà, còn tượng Quan Thế Âm (hay Quan Âm) có nhiều kiểu dáng đa dạng và có thể đặt ở nhiều nơi. Điều này vì tín ngưỡng Quan Thế Âm ở Việt Nam có vị trí độc lập, không nhất thiết phải gắn bó với tín ngưỡng Tịnh Độ A Di Đà. Người Việt coi Quan Thế Âm là nữ thần cứu khổ cứu nạn, giúp đỡ nhân dân, đặc biệt là phụ nữ và trẻ em, vượt qua bệnh tật, tai ương. Tín ngưỡng này còn có thể đã kết hợp với tín ngưỡng các nữ thần dân gian.
Trong chùa Việt Nam, tượng Quan Thế Âm có nhiều kiểu. Một trong những kiểu phổ biến là “Quan Thế Âm tổng từ”, mô tả một người phụ nữ bế một đứa bé, bên cạnh có con vẹt. Tượng này liên quan đến truyền thuyết dân gian về Thị Kính, bị chồng (Thiện Sĩ) hiểu lầm, đã cải trang làm trai, lấy tên là Kinh Tâm, đi tu chùa. Có người kể rằng Thị Màu, say mê Thị Kính nhưng bị cự tuyệt, sau đó đem con hoang của mình vứt vào chùa và vu oan cho Thị Kính là cha đứa bé. Thị Kính nhẫn nhục nuôi dưỡng đứa bé, rồi sau này trở thành Bồ Tát Quan Thế Âm. Con vẹt chính là biểu tượng của hậu thân của Thiện Sĩ.
“Quan Âm Nam Hải” là tượng Quan Âm ở trên biển. Người Trung Quốc đã coi Potála, nơi ở của Avalokitesvara theo truyền thuyết Ấn Độ, là núi Phổ Đà trên quần đảo Chu Sơn gần Hàng Châu. Đến lượt, người Việt Nam lại đồng nhất Nam Hải, nơi ở của Quan Âm với biển Việt Nam. Trong các chùa Việt Nam còn có loại tượng Quan Âm nhiều tay, được gọi là “Quan Âm Chuẩn Đề” (Cundi-Avalokitesvara). Trong loại tượng này, có kiểu “Thiên thủ thiên nhãn” (Sahasrabhuja-sahasranetra) với nghìn tay nghìn mắt, trong đó mỗi bàn tay có hình một con mắt ở giữa. Pho tượng kiểu này, trông rất đặc trưng, được nhà điêu khắc họ Trương tạc năm 1656 tại chùa Bút Tháp (tỉnh Bắc Ninh), và được coi là niềm tự hào của điêu khắc cổ Việt Nam.
Trong chùa, các tượng Quan Âm tống tử, Quan Âm Nam Hải thường được đặt trên các bàn thờ ở góc hai bên bàn thờ chính trong nhà thượng điện. Tượng Quan Âm nhiều tay có thể đặt trên bàn thờ chính hoặc ở bàn thờ riêng. Tượng Quan Âm nghìn mắt nghìn tay tại chùa Bút Tháp đặt ở gian bên cạnh bàn thờ chính. Trong một số chùa, tượng Quan Âm còn được đặt trong các động đắp bằng vôi vữa.
Trên bàn thờ chính, bên cạnh ba pho tượng Di Đà tam tôn đã đề cập, thường có tượng Phật Thích Ca Mâu Ni (Sakyamuni), bên trái là tượng Bồ Tát Văn Thù Sư Lợi (Manjusri), bên phải là tượng Bồ Tát Phổ Hiền (Samantabhadra). Thích Ca ngồi trên tòa sen, còn Văn Thù và Phổ Hiền đứng trên tòa sen. Trong một số trường hợp, Văn Thù ngồi trên lưng con sư tử màu xanh, còn Phổ Hiền ngồi trên lưng con voi màu trắng. Bộ ba tượng này thể hiện cảnh Phật Thích Ca đang thuyết pháp. Thỉnh thoảng, thay vào vị trí của Văn Thù và Phổ Hiền, còn có hai đệ tử của Thích Ca là Ca Diếp (Kasyapa) và A Nan Đà (Ananda).

Bức tượng Phật thiên thủ thiên nhãn tọa tại chùa Bút Tháp, huyện Thuận Thành, tỉnh Bắc Ninh, nằm trong một kiệt tác kiến trúc truyền thống của người Việt Nam. Bức tượng thể hiện tay nghề siêu việt của người Việt qua hình thái, tỷ lệ, kích thước và chi tiết đẹp trong từng mm. Hiện bức tượng vẫn nằm tại tòa Thượng Điện cho mọi người vô chiêm bái.
Ảnh: Triệu Chiến
Tượng Thích Ca trong chùa Việt Nam thường có nhiều kiểu khác nhau, phản ánh các giai đoạn khác nhau trong cuộc đời của Phật. Tượng Tuyết Sơn thể hiện thời kỳ Thích Ca tu khổ hạnh trên núi tuyết, tức Himalaya, với thân hình gầy guộc, ngực hiện rõ các chiếc xương sườn. Ở Việt Nam có nhiều pho tượng Tuyết Sơn đẹp, đặc sắc, như ở chùa Tây Phương, chùa Mía…

Tượng Tuyết Sơn trong chùa Bút Tháp.
Ảnh Triệu Chiến
Tượng Nhập niết bàn (Parinirvana) là tượng Thích Ca nằm nghiêng, cánh tay chống lên đỡ lấy đầu, mắt lim dim. Trong các chùa Việt Nam, kiểu tượng này khá hiếm, nhưng cũng có một số pho tượng đẹp như ở chùa Mía hay chùa Trấn Quốc…
Kiểu tượng phổ biến hơn là Thích Ca sơ sinh, thể hiện hình một chú bé với tay trái chỉ lên trời, tay phải chỉ xuống đất. Theo truyền thuyết, khi Thích Ca ra đời, có chín con rồng (ở Ấn Độ gọi là naga) phun nước tắm. Vì thế, tượng Thích Ca sơ sinh ở Việt Nam thường đặt dưới một vòm chạm hình chín con rồng bay xung quanh, giữa những đám mây, có các chư thiên, tiên nữ, và đôi khi cả bộ Kim Cương. Kiểu tượng này gọi là tượng Cửu Long (Chín rồng). Tượng Thích Ca sơ sinh và tượng Cửu Long thường được bày trên tầng dưới cùng của bàn thờ chính. Hai bên tượng Thích Ca sơ sinh, người ta thường đặt tượng Đế Thích (Indra) và tượng Phạm Vương, còn gọi là Phạm Thiên (Brahma).
Như chúng ta đã biết, ở Ấn Độ, Indra và Brahma đã được đưa vào hệ thống thần điện Phật Giáo từ rất sớm. Trên các điêu khắc Phật giáo tại Gandhara và Mathura, đã xuất hiện hình ảnh Indra và Brahma đứng hai bên đức Phật. Cùng với sự lan truyền của Phật giáo, tín ngưỡng về Indra và Brahma – như những người bảo vệ của đức Phật – cũng đã được phổ biến tới các nước Đông Á và Đông Nam Á. Ở Việt Nam, Indra — gọi là Đế Thích — và Brahma — gọi là Phạm Thiên — được coi là các chúa tể của thế giới loài người và thần thánh. Khi đức Thích Ca chưa thành đạo, họ phải luôn ở bên cạnh để hộ trì. Vì họ được quan niệm là những ông vua, nên tượng của họ thường được tạo hình trong tư thế ngồi trên ngai báu, đội mũ miện và mặc áo cổn.
Tuy nhiên, ở một số nước châu Á, Indra có vị trí quan trọng hơn Brahma trong tín ngưỡng của nhân dân. Tín ngưỡng về Indra thường lẫn vào tín ngưỡng dân gian. Ở Việt Nam, từ xưa Đế Thích không chỉ được thờ phụng bên cạnh Phạm Thiên mà còn có thể thờ riêng. Đã có những chùa xây riêng để thờ Đế Thích, như chùa Vua tại Hà Nội.
Trên bàn thờ chính trong nhà thượng điện, ngoài tượng Phật A Di Đà, Phật Thích Ca, còn có tượng Phật Di Lặc (Maitreya). Tượng Di Lặc thường được tạo với bộ mặt tươi cười, áo phanh, để lộ bụng to. Người Việt Nam quen gọi là “Ông Vô Lo”. Thật ngược lại, khi đặt tượng Di Lặc bên cạnh tượng Tuyết Sơn, thì lại thấy rõ vẻ gò khổ. Tượng Di Lặc đã có mặt từ lâu trong Phật điện Việt Nam. Tuy nhiên, trong chính giáo Phật giáo Việt Nam, Di Lặc chưa bao giờ có vị trí quan trọng bằng A Di Đà. Hầu hết các chùa đều có tượng A Di Đà, nhưng không phải tất cả đều có tượng Di Lặc. Ở Trung Quốc, tín ngưỡng Tịnh Độ A Di Đà và Tịnh Độ Di Lặc khá phổ biến, còn ở Việt Nam, chỉ có tín ngưỡng Tịnh Độ A Di Đà được duy trì, còn tín ngưỡng Tịnh Độ Di Lặc ít phổ biến hơn.

Hai bức hộ pháp trong chùa Bút Tháp (Bắc Ninh).
Ảnh: Triệu Chiến

Trong nhà tiền đường, thường đặt hai tượng Hộ Pháp (Dvarapala), là những thiên thần bảo vệ Phật pháp. Những tượng này làm bằng đất, phủ sơn, có kích thước lớn, đầu gần chạm mái. Do đó, trong ngôn ngữ Việt Nam, có thành ngữ “to như Hộ Pháp”. Trong một số chùa, còn có tượng Bát Bộ Kim Cương (Vajrapani), gồm tám vị thần bảo vệ của Phật, cũng mặc giáp trụ và cầm vũ khí. Đôi khi, trong nhà bái đường còn đặt bàn thờ mười vị Diêm Vương (Thập Điện Diêm Vương), là mười vị vua cai quản mười tầng địa ngục. Bàn thờ này cũng có thể đặt sát tường ở hai bên nhà chính điện. Cảnh mười tầng địa ngục, đôi khi được thể hiện qua phù điêu hoặc đắp thành động, mô tả cảnh những người có tội bị các quỷ Dạ Xoa hành hình bằng nhiều cách, trước mặt các Diêm Vương. Trong nhà thờ chính, còn có thể có các bàn thờ khác như Thổ Địa (Thần Đất), Long Vương, hoặc Đức Ông – người bảo vệ tài sản của chùa. Có người cho rằng, người bảo vệ tài sản cho chùa này chính là Cấp Cô Độc (Anathapindika), người từng cúng dường nhiều tài sản cho Phật, nhưng cũng có người không nghĩ như vậy.
Ở nhà tổ, ngoài tượng các vị sư từng trụ trì ở chùa, còn có bàn thờ đặt tượng Bồ Đề Đạt Ma (Bodhidharma), nhà sư Ấn Độ đến Trung Hoa vào khoảng đầu thế kỷ VI, được coi là người sáng lập Thiền Tông ở đây. Vì Phật giáo Việt Nam thường tự coi là thuộc các phái Thiền, nên đều thờ vị tổ thứ nhất này. Tượng Bồ Đề Đạt Ma thường có mũi cao, tóc quăn, râu quai nón.
Ở các chùa, có hai dãy hành lang, người ta thường bày tượng 18 vị La Hán (Arhat), mỗi bên 9 tượng. Có chùa, như chùa Keo (tỉnh Thái Bình), các tượng La Hán được bày ngay trong nhà tiền đường. Riêng ở chùa Tây Phương (Hà Nội), có những pho tượng đẹp, bày ở hậu đường, được coi là tượng La Hán, nhưng căn cứ theo tên các vị này, như Gia Na Hòa Tu (Sanakavasa), Ba Tu Mật (Vasumitra), Phật Đà Nan Dè (Buddhanandi), Ca Tỳ Ma La (Kapimala), La Hầu La Đa (Rahulata), Tăng Già Nan Dè (Sanghanandi), Cuu Ma La Da (Kumarata), Chà Dạ Đa (Jayata)… Đó chính là tên của các vị tổ (trong 28 vị) người Ấn Độ mà Thiền Tông Trung Quốc truy nguyên và thừa nhận. Nếu vậy, đây là tượng Tổ chứ không phải tượng La Hán.
TIỀN PHẬT – HẬU THÁNH
Do tính chất pha tạp của Phật giáo Việt Nam, trong các chùa ngoài tượng Phật, Bồ Tát, La Hán hay các thiên thần Phật giáo, còn có thể gặp tượng các vị thần Đạo giáo như Ngọc Hoàng Thượng Đế, Thái Thượng Lão Quân hoặc Nam Tào, Bắc Đẩu. Đặc biệt, trong các chùa Việt Nam thường có bàn thờ Mẫu, tức nữ thần Mẹ. Thờ Mẫu là một tín ngưỡng Việt Nam có nguồn gốc dân gian. Có nhiều Mẫu, như Mẫu Thượng Ngàn (nữ thần Núi), Mẫu Thoải (nữ thần Nước), Mẫu Địa Phủ (nữ thần Đất)… Trong số đó, Mẫu Liễu – còn gọi là công chúa Liễu Hạnh – là một trong “tứ bất tử” (bốn vị thánh bất tử). Thánh Mẫu Liễu Hạnh được thờ trong nhiều đền nổi tiếng, nhưng cũng có nhiều chùa thờ. Chẳng hạn, ở chùa Mía (Hà Nội), bàn thờ Liễu Hạnh đặt ngay tại nhà tiền đường.
Liên quan đến tín ngưỡng thờ nữ thần, còn có hệ thống các chùa gọi là Tứ Pháp, hiện chỉ thấy phổ biến trong vùng đồng bằng Bắc Bộ. Mỗi hệ thống như vậy thường gồm bốn chùa, mang tên là Pháp Vân (Mây Pháp), Pháp Vũ (Mưa Pháp), Pháp Lôi (Sấm Pháp) và Pháp Điện (Chớp Pháp). Đó cũng là tên các nữ thần được thờ trong các chùa này. Những tên Mây, Mưa, Sấm, Chớp khiến chúng ta liên tưởng rằng đây là các nữ thần biểu tượng cho các sức mạnh thiên nhiên của cư dân nông nghiệp.

Ngoài ra, các nữ thần này còn có những tên gọi dân gian dễ nhớ hơn như Bà Dâu, Bà Đậu, Bà Dàn và Bà Tướng. Trong các chùa này, tượng của các bà nữ thần thường được tạc với kích thước lớn, to hơn rất nhiều so với tượng Phật.
Hệ thống chùa Tứ Pháp tiêu biểu, và cũng có thể là cổ nhất, là ở vùng Thuận Thành (tỉnh Bắc Ninh), trung tâm là chùa Dâu (còn gọi là Pháp Vân tự hoặc Diên Ứng tự). Chùa Đậu (Pháp Vũ tự) ở Thường Tín (tỉnh Hà Tây) và chùa Thái Lạc (Pháp Vân tự) ở Mỹ Văn (tỉnh Hưng Yên) đều thuộc hệ thống Tứ Pháp. Hiện nay, do một số chùa bị hư hại, người ta đã đem tượng các nữ thần về đặt chung trên một bàn thờ trong các chùa như chùa Dâu, chùa Thái Lạc… Hệ thống chùa Tứ Pháp là minh chứng cho sự kết hợp giữa Phật giáo với các tín ngưỡng dân gian nguyên thủy của người Việt Nam.

Sự hòa nhập Phật giáo với các tín ngưỡng truyền thống Việt Nam còn được thấy qua một loại chùa khác, loại chùa “tiền Phật hậu Thần”, cũng gọi là “tiền Phật hậu Thánh”. Trong các chùa loại này, đằng sau điện thờ Phật là hậu cung thờ một vị thần. Nếu ở điện Phật, người ta có thể đến cúng lễ bất kỳ lúc nào, thì khám thờ thần đóng kín suốt năm, không ai được vào và chỉ được mở trong một số ngày lễ hội nhất định. Có những chùa lớn, như chùa Keo (tỉnh Thái Bình), nơi thờ thần, gồm đến mấy nếp nhà tách rời khỏi khu vực thờ Phật.
Các vị thần được thờ đều là những “nhân thần”, có nghĩa là những con người được coi là có thực, nhưng về sau, nhờ học tập, tu luyện, đã có tài thần thông biến hóa, nghĩa là có những khả năng của một vị thần. Nhờ những khả năng đó, họ cứu dân giúp nước, và vì vậy, họ được nhân dân một vùng hay nhiều vùng thờ phụng.

Chùa Trăm Gian (Chương Mỹ, Hà Nội).
Ảnh: Trần Trung Hiếu
Chẳng hạn, ở chùa Bối Khê và chùa Trăm Gian (Hà Nội), đều thờ “Đức thánh Bối” tên là Nguyễn Bình An. Gọi là Đức thánh Bối vì ông sinh ra ở làng Bối Khê. Theo sự tích của ông được kể trong tấm bia năm 1453 (khắc lại năm 1895) đặt ở chùa Bối Khê thì ông sinh vào thời Trần, từ bé đã thích phóng sinh, sáu bảy tuổi gặp năm trời đại hạn, đã cùng trẻ chăn trâu đem tôm cá ở đồng thả cho sống trong dòng sông Nhuệ. Đến năm 15 tuổi, ông đã gặp một cụ già 80 tuổi ở chùa Tiên Lữ (tức chùa Trăm Gian), ở đây khoảng mười năm, ông đã học được từ cụ già các phép thần thông. Sau khi ông “hóa”, không những nhân dân cầu gì được nấy, mà ông còn bằng một trận mưa máu, giết chết quân xâm lược Minh. Vì vậy, chùa Bối Khê, quê ông, và chùa Trăm Gian, nơi ông đắc đạo, đều thờ ông.
Có ba nhân vật khác cũng được thờ trong nhiều chùa, đó là Từ Đạo Hạnh (? – 1117), Dương Không Lộ (?-1119) và Nguyễn Minh Không (1066-1141). Đây là ba nhà sư thời Lý mà tiểu sử của họ đã được chép trong “Thiền uyển tập anh”, một tác phẩm thời Trần. Đạo Hạnh và Minh Không thuộc phải Thiền Tì Ni Đa Lưu Chi (Vinitaruci), Không Lộ thuộc phái Thiền Vô Ngôn Thông. Nhưng theo tiểu sử, cũng như truyền thuyết, ba người này đều có pháp thuật cao cường, thần thông biến hóa. Từ Đạo Hạnh đã đầu thai làm vua Lý Thần Tông. Còn Nguyễn Minh Không thì được coi là người đã chữa được bệnh điên hóa thành hổ của vua Lý Thần Tông. Truyền thuyết về Minh Không và Không Lộ có nhiều điểm lẫn lộn với nhau, đến nỗi ở nhiều nơi, người ta đã đồng nhất hai người này làm một. Minh Không và Không Lộ được thờ trong rất nhiều chùa ở đồng bằng Bắc Bộ, như chùa Keo (tỉnh Thái Bình), chùa Cổ Lễ (tỉnh Nam Định), chùa Quán Sứ (Hà Nội)… Trong các chùa này, họ được thờ không phải với tư cách là thiền sư hay vị tổ nữa, mà như những “đức thánh”, tức các vị thần thực sự.
Ngoài những vị thần, hay đúng hơn là “bản thần”, được thờ trong loại chùa “tiền Phật hậu Thần”, còn có những nhân vật lịch sử thực sự được thờ. Họ là những ông quan, những danh sĩ hay những vị tướng đã có công với nước hoặc với nhân dân một vùng. Đó là Mạc Đĩnh Chi (1272-1346), trạng nguyên thời Trần, được thờ ở chùa Dâu (tỉnh Bắc Ninh), đó là Đặng Tiến Đông, vị tướng thời Tây Sơn, được thờ ở chùa Trăm Gian (Hà Nội)… Trong các chùa này, thường có tượng chân dung của các nhân vật lịch sử được thờ.
Một loại nhân vật khác cũng được thờ trong các chùa là những người góp tiền của và đứng ra chủ trì việc xây dựng hoặc trùng tu chùa. Đáng chú ý là trong nhiều chùa ở miền Bắc, phần lớn các nhân vật này là nữ, thường là cung phi của vua Lê, chúa Trịnh hoặc phu nhân của các đại thần, quý tộc. Chẳng hạn, ở chùa Bút Tháp (tỉnh Bắc Ninh), có cả phủ thờ với tượng của Thái hậu Trịnh Thị Ngọc Trúc, công chúa Lê Thị Ngọc Duyên và quận chúa Trịnh Thị Ngọc Cơ, là những người đã góp công xây dựng chùa vào thế kỷ XVII. Ở chùa Mía (Hà Nội), Bà Chúa Mía, một cung tần ở phủ chúa Trịnh, cũng được thờ trong một khám riêng bên trái Phật điện.
Một hình thức thờ tự khác gắn liền với các chùa Việt Nam là thờ “Hậu”. Hình thức này có mối liên hệ với tập tục thờ cúng tổ tiên đã hình thành từ lâu trong đời sống của người Việt. Chúng ta phải thờ cúng tổ tiên và những người đã khuất, coi đó là nghĩa vụ thiêng liêng. Những người đã mất phải được con cháu còn sống thờ cúng. Thật bất hạnh và đau xót cho những ai không có con cháu để thờ cúng sau khi chết. Vì vậy, nhiều người không có con muốn được thờ cúng sau khi mất, đã tìm đến nhà chùa. Họ đóng góp một số tiền hoặc ruộng đất, rồi xin nhà chùa cúng lễ cho họ sau khi qua đời. Việc thờ cúng này gọi là “thờ Hậu” (“hậu” nghĩa là sau, tức là thờ cúng sau khi chết, thay thế cho những người hậu tự – còn gọi là con cháu nối dõi). Ruộng đất của những người này khi cúng vào chùa còn gọi là “ruộng hậu”. Trong nhiều chùa, có bàn thờ “hậu”, thường là một hành lang với những bát hương, đặt trước các tấm bia đá gọi là bia “hậu”. Trên bia khắc rõ tên tuổi, quê quán của những người không còn con cháu nối dõi, thường là của vợ chồng họ cùng các khoản tiền hoặc ruộng đất họ đã đóng góp và yêu cầu được thờ cúng trong chùa. Những bia này mang tính chất như những “hợp đồng”. Trong các chùa, có nhiều bia hậu, như ở chùa Cổ Lễ (tỉnh Nam Định), các bia hậu được gắn dày đặc trên tường hành lang bao quanh chính điện.
Trên đây là vài nét khái quát về chùa Việt Nam qua cái nhìn đương đại. Tuy nhiên, khi xem xét như vậy, sẽ không thể thấy hết những yếu tố lịch sử, đậm đà truyền thống đã quy tụ trong thời gian hiện tại. Các ngôi chùa còn tồn tại ngày nay là kết quả của quá trình lịch sử lâu dài. Có những chùa đã trở thành những bảo tàng, lưu giữ những di tích của các thời kỳ khác nhau. Nhưng không chỉ có các di tích “chết”, quá khứ còn sống động, đậm đà trong các hội chùa, qua các lớp văn hóa, bản sắc dân tộc. Và như vậy, không thể bỏ qua vai trò của ngôi chùa trong đời sống văn hóa Việt Nam.
Tổng hợp
Anh Nguyên

